芦田町下有地 店舗付き住宅
福塩線 上戸手駅まで徒歩41分
500万円
土地面積/182.04㎡建物面積/138.83㎡

駐車4台可能な、ゆとりのカースペースを確保。来客時や複数台所有のご家庭にもうれしいポイントです♪
担当者からのおすすめポイント!
物件情報
- 物件名
- 芦田町下有地 店舗付き住宅
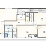
- 間取り
- 5DK+店舗
- 建物面積
- 138.83㎡
- 土地面積
- 182.04㎡
- 構造
- 木造、鉄骨造
- 地目
- 宅地
- 都市計画
- 市街化調整区域
- 現状
- 所有者住居中
- 駐車場
- 4台可
- 用途地域
- 無指定
- 交通
- 福塩線 上戸手駅まで徒歩41分
- 建ぺい率
- 70%
- 取引形態
- 媒介
- 学区
- 有磨小学校、芦田中学校
- 容積率
- 200%
- 築年月
- 1977年8月
- 設備
- 電気、井戸、汲取り、プロパンガス、ガス給湯
- 備考
- ①店舗部分では元美容院でした。 ②固定資産税 34,858円/年 ③有磨小学校まで1.6km


